INNENARCHITEKTUR –
BEISPIELHAFTE FEINPLANUNG EINES DESIGNPROJEKTES
INNENARCHITEKTUR –
BEISPIELHAFTE FEINPLANUNG
EINES DESIGNPROJEKTES
INNENARCHITEKTUR –
BEISPIELHAFTE FEINPLANUNG EINES DESIGNPROJEKTES
INTERIOR DESIGNS WACHSEN LASSEN
Design-Konzepte beschreiben einen Werdensprozess. Wie die Zweige eines zart sprießenden Keimlings bilden sich, Schritt für Schritt, die Verzweigungen anspruchsvoller Designs heraus. Im Folgenden erfahren Sie auf anschauliche und beispielhafte Weise, wie Ihr Planungsprozess sich – etwa durch Vorher-Nachher-Bilder – in der Praxis gestalten könnte. Erfahren Sie, wie die beispielhafte Planung Ihres Projekts sich in der Praxis gestalten könnte.
INTERIOR DESIGNS WACHSEN LASSEN
Design-Konzepte beschreiben einen Werdensprozess. Wie die Zweige eines zart sprießenden Keimlings bilden sich, Schritt für Schritt, die Verzweigungen anspruchsvoller Designs heraus. Im Folgenden erfahren Sie auf anschauliche und beispielhafte Weise, wie Ihr Planungsprozess sich – etwa durch Vorher-Nachher-Bilder – in der Praxis gestalten könnte. Erfahren Sie, wie die beispielhafte Planung Ihres Projekts sich in der Praxis gestalten könnte.
INTERIOR DESIGNS WACHSEN LASSEN
Design-Konzepte beschreiben einen Werdensprozess. Wie die Zweige eines zart sprießenden Keimlings bilden sich, Schritt für Schritt, die Verzweigungen anspruchsvoller Designs heraus. Im Folgenden erfahren Sie auf anschauliche und beispielhafte Weise, wie Ihr Planungsprozess sich – etwa durch Vorher-Nachher-Bilder – in der Praxis gestalten könnte. Erfahren Sie, wie die beispielhafte Planung Ihres Projekts sich in der Praxis gestalten könnte.
IHR INTERIOR DESIGN IN DER PRAXIS
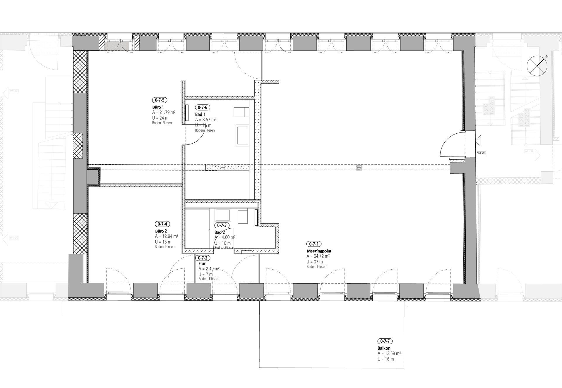
Sie wenden sich mit einem besonderen Anliegen an VEROBUENO®. Auf 120 rund Quadratmetern sollen privates Büro und Meetingpoint für Klienten vereint werden. Ihnen schwebt eine hybride Arbeitswelt vor, welche die positive kommunikative Entwicklung aller Beteiligten in den Fokus stellen. Zugleich sollen die Merkmale des Büros auf repräsentative Art in Szene gesetzt werden, um einen professionellen, hochwertigen Eindruck zu vermitteln.
Die Erstberatung kann wahlweise persönlich, telefonisch oder per Videochat erfolgen. Kurzerhand vereinbaren wir jedoch einen ersten persönlichen Gesprächstermin in einem gemütlichen Café. Dieser Termin gilt dem gegenseitigen Kennenlernen. Zu dieser Gelegenheit erfahren Sie alle Einzelheiten des Planungsprozesses. Dank Ihrer qualitativen, ausführlichen, ausgehändigten Planungsunterlagen wie dem Grundriss kann die konkrete Konzeption direkt beginnen.
IHR INTERIORS DESIGN IN DER PRAXIS
Sie wenden sich mit einem besonderen Anliegen an VEROBUENO®. Auf rund 120 Quadratmetern sollen privates Büro und Meetingpoint für Klienten vereint werden. Ihnen schwebt eine hybride Arbeitswelt vor, welche die positive kommunikative Entwicklung aller Beteiligten in den Fokus stellen. Zugleich sollen die Merkmale des Büros auf repräsentative Art in Szene gesetzt werden, um einen professionellen, hochwertigen Eindruck zu vermitteln.
Die Erstberatung kann wahlweise persönlich, telefonisch oder per Videochat erfolgen. Kurzerhand vereinbaren wir jedoch einen ersten persönlichen Gesprächstermin in einem gemütlichen Café. Dieser Termin gilt dem gegenseitigen Kennenlernen. Zu dieser Gelegenheit erfahren Sie alle Einzelheiten des Planungsprozesses. Dank Ihrer qualitativen, ausführlichen, ausgehändigten Planungsunterlagen wie dem Grundriss kann die konkrete Konzeption direkt beginnen.
IHR INTERIOR DESIGN IN DER PRAXIS
Sie wenden sich mit einem besonderen Anliegen an VEROBUENO®. Auf rund 120 Quadratmetern sollen privates Büro und Meetingpoint für Klienten vereint werden. Ihnen schwebt eine hybride Arbeitswelt vor, welche die positive kommunikative Entwicklung aller Beteiligten in den Fokus stellen. Zugleich sollen die Merkmale des Büros auf repräsentative Art in Szene gesetzt werden, um einen professionellen, hochwertigen Eindruck zu vermitteln.
Die Erstberatung kann wahlweise persönlich, telefonisch oder per Videochat erfolgen. Kurzerhand vereinbaren wir jedoch einen ersten persönlichen Gesprächstermin in einem gemütlichen Café. Dieser Termin gilt dem gegenseitigen Kennenlernen. Zu dieser Gelegenheit erfahren Sie alle Einzelheiten des Planungsprozesses. Dank Ihrer qualitativen, ausführlichen, ausgehändigten Planungsunterlagen wie dem Grundriss kann die konkrete Konzeption direkt beginnen.
Ein Tipp: Je besser die Qualität Ihrer Planungsgrundlagen ist desto effizienter gestaltet sich der nachfolgende Planungsprozess. Ein hochwertiger Grundriss gestattet den sofortigen Beginn der Konzeption.
Sie möchten wissen, wie Ihr Design-Projekt aussehen könnte?
Wischen Sie über das Foto, um einen Vorher-Nachher-Vergleich zu erhalten.
Ein Tipp: Je besser die Qualität Ihrer Planungsgrundlagen ist desto effizienter gestaltet sich der nachfolgende Planungsprozess. Ein hochwertiger Grundriss gestattet den sofortigen Beginn der Konzeption.
Ein Tipp: Je besser die Qualität Ihrer Planungsgrundlagen ist desto effizienter gestaltet sich der nachfolgende Planungsprozess. Ein hochwertiger Grundriss gestattet den sofortigen Beginn der Konzeption.
GRUNDRISS
GRUNDRISS

Sie möchten wissen, wie Ihr Design-Projekt aussehen könnte?
Wischen Sie über das Foto, um einen Vorher-Nachher-Vergleich zu erhalten.
Sie möchten wissen, wie Ihr Design-Projekt aussehen könnte?
Wischen Sie über das Foto, um einen Vorher-Nachher-Vergleich zu erhalten.
GRUNDRISS

GRUNDRISS | EG

EINGANGSBEREICH
Zentraler Bestandteil der Bedarfsermittlung sind Inspirationen und stilistische Anregungen. So begutachten wir gemeinsam beispielhafte Projekte, fachsimpeln über ansprechende Stilelemente und verwerfen Ungeeignetes. Als besonders wichtig stellt sich bei Ihnen ein einladender Eingangsbereich heraus, welcher die Güte Ihrer Dienstleistung nach außen verkörpern soll. Er soll als künftige Visitenkarte einen überwältigenden ersten Eindruck erzielen.
Nachdem das grundsätzliche Anforderungsprofil festgelegt ist, vereinbaren wir das zur Verfügung stehende Budget. So stehen die wesentlichen Säulen des Projekts fest, welche richtungsweisend für die Design-Konzeption werden wird. Dieses Erstgespräch gehört zur unverzichtbaren Sondierung von Kundenwünschen und definiert die Meilensteine der innenarchitektonischen Feinplanung.
Basierend auf diesen Grundlagen entwickelt VEROBUENO® ein Angebot für den gewünschten Leistungsumfang. Bei einer Vor-Ort-Besichtigung führen wir eine Bestandsaufnahme, einschließlich der Bemaßungen, durch. Dabei fertigen wir Fotoaufnahmen an, welche insbesondere für die Visualisierung von Entwürfen tragend sind. Anhand des Vorher-Nachher-Vergleichs erkennen Sie den realitätsnahen Eindruck, welchen die Collage vermittelt. Basierend auf den individuellen Besonderheiten Ihres Objekts vereinbaren wir gemeinsam die Qualität des Entwurfs.
EINGANGSBEREICH
Zentraler Bestandteil der Bedarfsermittlung sind Inspirationen und stilistische Anregungen. So begutachten wir gemeinsam beispielhafte Projekte, fachsimpeln über ansprechende Stilelemente und verwerfen Ungeeignetes. Als besonders wichtig stellt sich bei Ihnen ein einladender Eingangsbereich heraus, welcher die Güte Ihrer Dienstleistung nach außen verkörpern soll. Er soll als künftige Visitenkarte einen überwältigenden ersten Eindruck erzielen.
Nachdem das grundsätzliche Anforderungsprofil festgelegt ist, vereinbaren wir das zur Verfügung stehende Budget. So stehen die wesentlichen Säulen des Projekts fest, welche richtungsweisend für die Design-Konzeption werden wird. Dieses Erstgespräch gehört zur unverzichtbaren Sondierung von Kundenwünschen und definiert die Meilensteine der innenarchitektonischen Feinplanung.
Basierend auf diesen Grundlagen entwickelt VEROBUENO® ein Angebot für den gewünschten Leistungsumfang. Bei einer Vor-Ort-Besichtigung führen wir eine Bestandsaufnahme, einschließlich der Bemaßungen, durch. Dabei fertigen wir Fotoaufnahmen an, welche insbesondere für die Visualisierung von Entwürfen tragend sind. Anhand des Vorher-Nachher-Vergleichs erkennen Sie den realitätsnahen Eindruck, welchen die Collage vermittelt. Basierend auf den individuellen Besonderheiten Ihres Objekts vereinbaren wir gemeinsam die Qualität des Entwurfs.
EINGANGSBEREICH
Zentraler Bestandteil der Bedarfsermittlung sind Inspirationen und stilistische Anregungen. So begutachten wir gemeinsam beispielhafte Projekte, fachsimpeln über ansprechende Stilelemente und verwerfen Ungeeignetes. Als besonders wichtig stellt sich bei Ihnen ein einladender Eingangsbereich heraus, welcher die Güte Ihrer Dienstleistung nach außen verkörpern soll. Er soll als künftige Visitenkarte einen überwältigenden ersten Eindruck erzielen.
Nachdem das grundsätzliche Anforderungsprofil festgelegt ist, vereinbaren wir das zur Verfügung stehende Budget. So stehen die wesentlichen Säulen des Projekts fest, welche richtungsweisend für die Design-Konzeption werden wird. Dieses Erstgespräch gehört zur unverzichtbaren Sondierung von Kundenwünschen und definiert die Meilensteine der innenarchitektonischen Feinplanung.
Basierend auf diesen Grundlagen entwickelt VEROBUENO® ein Angebot für den gewünschten Leistungsumfang. Bei einer Vor-Ort-Besichtigung führen wir eine Bestandsaufnahme, einschließlich der Bemaßungen, durch. Dabei fertigen wir Fotoaufnahmen an, welche insbesondere für die Visualisierung von Entwürfen tragend sind. Anhand des Vorher-Nachher-Vergleichs erkennen Sie den realitätsnahen Eindruck, welchen die Collage vermittelt. Basierend auf den individuellen Besonderheiten Ihres Objekts vereinbaren wir gemeinsam die Qualität des Entwurfs.
Sie möchten wissen, wie Ihr Eingangsbereich aussehen könnte?
Wischen Sie über das Foto, um einen Vorher-Nachher-Vergleich zu erhalten.
Sie möchten wissen, wie Ihr Eingangsbereich aussehen könnte?
Wischen Sie über das Foto, um einen Vorher-Nachher-Vergleich zu erhalten.
Sie möchten wissen, wie Ihr Eingangsbereich aussehen könnte?
Wischen Sie über das Foto, um einen Vorher-Nachher-Vergleich zu erhalten.



LOUNGEBEREICH
Einer der Eckpfeiler des Designs wird der erlesene Lounge-Bereich, in welchen wir vorhandenes Mobiliar wie das Sofa stilsicher integrieren. Der ausgearbeitete VEROBUENO® Entwurf überzeugt Sie auf ganzer Linie. Kontrastierende Texturen, dunkle Farben, hochwertige Materialien und maskuline Stilelemente treffen auf Anhieb ins Schwarze. Im weiteren Verlauf des Projekts nehmen wir kleinere Anpassungen vor, um Ihrem Idealbild möglichst nah zu kommen. Besonders die Vorher-Nachher-Ansicht vermitteln einen wahrhaftigen Eindruck der Seele des Konzepts.
LOUNGEBEREICH
Einer der Eckpfeiler des Designs wird der erlesene Lounge-Bereich, in welchen wir vorhandenes Mobiliar wie das Sofa stilsicher integrieren. Der ausgearbeitete VEROBUENO® Entwurf überzeugt Sie auf ganzer Linie. Kontrastierende Texturen, dunkle Farben, hochwertige Materialien und maskuline Stilelemente treffen auf Anhieb ins Schwarze. Im weiteren Verlauf des Projekts nehmen wir kleinere Anpassungen vor, um Ihrem Idealbild möglichst nah zu kommen. Besonders die Vorher-Nachher-Ansicht vermitteln einen wahrhaftigen Eindruck der Seele des Konzepts.
LOUNGEBEREICH
Einer der Eckpfeiler des Designs wird der erlesene Lounge-Bereich, in welchen wir vorhandenes Mobiliar wie das Sofa stilsicher integrieren. Der ausgearbeitete VEROBUENO® Entwurf überzeugt Sie auf ganzer Linie. Kontrastierende Texturen, dunkle Farben, hochwertige Materialien und maskuline Stilelemente treffen auf Anhieb ins Schwarze. Im weiteren Verlauf des Projekts nehmen wir kleinere Anpassungen vor, um Ihrem Idealbild möglichst nah zu kommen. Besonders die Vorher-Nachher-Ansicht vermitteln einen wahrhaftigen Eindruck der Seele des Konzepts.
Sie möchten wissen, wie Ihr Loungebereich aussehen könnte?
Wischen Sie über das Foto, um einen Vorher-Nachher-Vergleich zu erhalten.
Sie möchten wissen, wie Ihr Loungebereich aussehen könnte?
Wischen Sie über das Foto, um einen Vorher-Nachher-Vergleich zu erhalten.
Sie möchten wissen, wie Ihr Loungebereich aussehen könnte?
Wischen Sie über das Foto, um einen Vorher-Nachher-Vergleich zu erhalten.



KÜCHE
Ihre Küche soll die Grenzen zwischen Wohlbefinden und Performance gezielt verschmelzen lassen. Ihr Kunden-Highlight ist die Versetzung von der Kücheninsel, welche dem Grundriss ein völlig neues Antlitz verleiht. Ein offenes und zugleich geschütztes Ambiente mit klaren räumlichen Strukturen macht die Küche zum selbstverständlichen Teil der Arbeitsumgebung. Im Zuge der Umsetzung entsteht eine detaillierte Inventarliste mit allen wichtigen Bezugsquellen, Arbeitsabläufen und Objekten, welche gemeinsam das Konzept ergeben.
KÜCHE
Ihre Küche soll die Grenzen zwischen Wohlbefinden und Performance gezielt verschmelzen lassen. Ihr Kunden-Highlight ist die Versetzung von der Kücheninsel, welche dem Grundriss ein völlig neues Antlitz verleiht. Ein offenes und zugleich geschütztes Ambiente mit klaren räumlichen Strukturen macht die Küche zum selbstverständlichen Teil der Arbeitsumgebung. Im Zuge der Umsetzung entsteht eine detaillierte Inventarliste mit allen wichtigen Bezugsquellen, Arbeitsabläufen und Objekten, welche gemeinsam das Konzept ergeben.
KÜCHE
Ihre Küche soll die Grenzen zwischen Wohlbefinden und Performance gezielt verschmelzen lassen. Ihr Kunden-Highlight ist die Versetzung von der Kücheninsel, welche dem Grundriss ein völlig neues Antlitz verleiht. Ein offenes und zugleich geschütztes Ambiente mit klaren räumlichen Strukturen macht die Küche zum selbstverständlichen Teil der Arbeitsumgebung. Im Zuge der Umsetzung entsteht eine detaillierte Inventarliste mit allen wichtigen Bezugsquellen, Arbeitsabläufen und Objekten, welche gemeinsam das Konzept ergeben.
Sie möchten wissen, wie Ihre Küche aussehen könnte?
Wischen Sie über das Foto, um einen Vorher-Nachher-Vergleich zu erhalten.
Sie möchten wissen, wie Ihre Küche aussehen könnte?
Wischen Sie über das Foto, um einen Vorher-Nachher-Vergleich zu erhalten.
Sie möchten wissen, wie Ihre Küche aussehen könnte?
Wischen Sie über das Foto, um einen Vorher-Nachher-Vergleich zu erhalten.



ESSBEREICH
Diese Konzeption wird für jeden Auftraggeber individuell, minutiös und basierend auf dem vereinbarten Leistungsumfang entwickelt. Das geplante Design lassen wir dann aus allen Perspektiven von geeigneten Fachplanern auf Machbarkeit und Budgettreue hin prüfen. Hierbei werden etwa Ausführungsplaner, Küchenplaner, Gärtner und Einrichtungshäuser beteiligt.
Nach der Fertigstellung des Entwurfs erfolgt das zweite Beratungsgespräch mit Ihnen. In dessen Rahmen lernen Sie das von VEROBUENO® entwickelte Design-Konzept, inklusive der Grobkosten, kennen. Ihre Persönlichkeit sowie die Anforderungen an Ihre Arbeitsumgebung implizieren edle Materialien, klare Strukturen und prägnante Kontraste. Der Blick von Gästen soll unmittelbar beim Betreten des Raums auf den einladenden Essbereich fallen, statt – wie bisher – auf die Küche gelenkt zu werden.
ESSBEREICH
Diese Konzeption wird für jeden Auftraggeber individuell, minutiös und basierend auf dem vereinbarten Leistungsumfang entwickelt. Das geplante Design lassen wir dann aus allen Perspektiven von geeigneten Fachplanern auf Machbarkeit und Budgettreue hin prüfen. Hierbei werden etwa Ausführungsplaner, Küchenplaner, Gärtner und Einrichtungshäuser beteiligt.
Nach der Fertigstellung des Entwurfs erfolgt das zweite Beratungsgespräch mit Ihnen. In dessen Rahmen lernen Sie das von VEROBUENO® entwickelte Design-Konzept, inklusive der Grobkosten, kennen. Ihre Persönlichkeit sowie die Anforderungen an Ihre Arbeitsumgebung implizieren edle Materialien, klare Strukturen und prägnante Kontraste. Der Blick von Gästen soll unmittelbar beim Betreten des Raums auf den einladenden Essbereich fallen, statt – wie
bisher – auf die Küche gelenkt zu werden.
ESSBEREICH
Diese Konzeption wird für jeden Auftraggeber individuell, minutiös und basierend auf dem vereinbarten Leistungsumfang entwickelt. Das geplante Design lassen wir dann aus allen Perspektiven von geeigneten Fachplanern auf Machbarkeit und Budgettreue hin prüfen. Hierbei werden etwa Ausführungsplaner, Küchenplaner, Gärtner und Einrichtungshäuser beteiligt.
Nach der Fertigstellung des Entwurfs erfolgt das zweite Beratungsgespräch mit Ihnen. In dessen Rahmen lernen Sie das von VEROBUENO® entwickelte Design-Konzept, inklusive der Grobkosten, kennen. Ihre Persönlichkeit sowie die Anforderungen an Ihre Arbeitsumgebung implizieren edle Materialien, klare Strukturen und prägnante Kontraste. Der Blick von Gästen soll unmittelbar beim Betreten des Raums auf den einladenden Essbereich fallen, statt – wie bisher – auf die Küche gelenkt zu werden.
Sie möchten wissen, wie Ihr Essbereich aussehen könnte?
Wischen Sie über das Foto, um einen Vorher-Nachher-Vergleich zu erhalten.
Sie möchten wissen, wie Ihr Essbereich aussehen könnte?
Wischen Sie über das Foto, um einen Vorher-Nachher-Vergleich zu erhalten.
Sie möchten wissen, wie Ihr Essbereich aussehen könnte?
Wischen Sie über das Foto, um einen Vorher-Nachher-Vergleich zu erhalten.



Bestandsmobiliar, Kundenwünsche wie der Vertical Garden, verbindende Gestaltungselemente und veränderte Raumproportionen überzeugen Sie auf ganzer Linie. Nach dem Startschuss zur Umsetzung erfolgt – in konstanter Abstimmung mit Gewerken und dem Auftraggeber – die praktische Ausführung des Projekts. Ein enger, wechselseitiger Kontakt und der rasche Fortschritt gestatten eine effiziente Realisierung, welche Ihre kühnsten Ambitionen übertreffen.
Finden Sie sich in dieser Planung und sind neugierig, wie sich die Feinplanung Ihres Projekts gestalten könnte? Nutzen Sie unser
Kontaktformular
für eine unverbindliche Erstberatung.
Bestandsmobiliar, Kundenwünsche wie der Vertical Garden, verbindende Gestaltungselemente und veränderte Raumproportionen überzeugen Sie auf ganzer Linie. Nach dem Startschuss zur Umsetzung erfolgt – in konstanter Abstimmung mit Gewerken und dem Auftraggeber – die praktische Ausführung des Projekts. Ein enger, wechselseitiger Kontakt und der rasche Fortschritt gestatten eine effiziente Realisierung, welche Ihre kühnsten Ambitionen übertreffen.
Finden Sie sich in dieser Planung und sind neugierig, wie sich die Feinplanung Ihres Projekts gestalten könnte? Nutzen Sie unser
Kontaktformular
für eine unverbindliche Erstberatung.
Bestandsmobiliar, Kundenwünsche wie der Vertical Garden, verbindende Gestaltungselemente und veränderte Raumproportionen überzeugen Sie auf ganzer Linie. Nach dem Startschuss zur Umsetzung erfolgt – in konstanter Abstimmung mit Gewerken und dem Auftraggeber – die praktische Ausführung des Projekts. Ein enger, wechselseitiger Kontakt und der rasche Fortschritt gestatten eine effiziente Realisierung, welche Ihre kühnsten Ambitionen übertreffen.
Finden Sie sich in dieser Planung und sind neugierig, wie sich die Feinplanung Ihres Projekts gestalten könnte? Nutzen Sie unser
Kontaktformular
für eine unverbindliche Erstberatung.
BÜRO DESIGN
fÜR INNOVATIVE UNTERNEHMEN
FINDEN SIE IHRE
INSPIRATIONEN
BÜRO DESIGN
FÜR INNOVATIVE UNTERNEHMEN
FINDEN SIE IHRE
INSPIRATIONEN
BÜRO DESIGN
FÜR INNOVATIVE UNTERNEHMEN








